









Проект Комфорт 190-С-М1
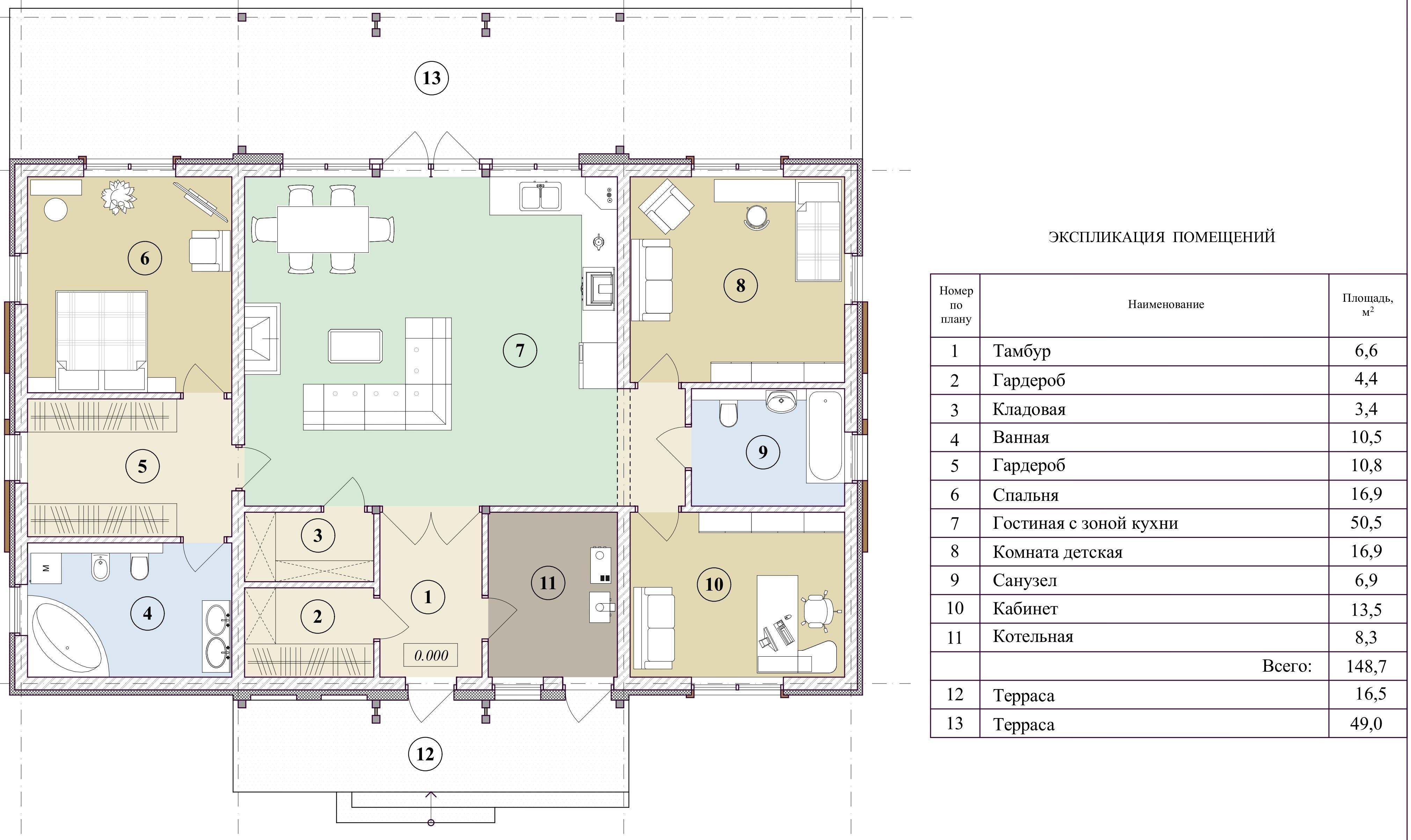
Просторный, стильный дом в стиле «Шале» с большой террасой. - Кирпичные стены и перегородки —надежность и комфорт на долгие годы. - Потолки высотой до 4,5 метров - Двухуровневое панорамное остекление гостиной - Система теплых полов – тепло и уют без потерь - Увеличенная гарантия входит в стоимость 190 м² эффективно спланированного пространства: - Просторная кухня-гостиная с выходом на крытую террасу - Три спальни, включая мастер-спальню с гардеробной и отдельным санузлом Стоимость строительства на 2026г. «Тепловой контур» – от 9 000 000*руб. «Под черновую» - от 10 500 000*руб. «White box» - от 11 500 000*руб. *- Стоимость при стандартных условиях, стоимость может быть изменена в зависимости от индивидуальной комплектации дома, условий оплаты, удаленности участка строительства, условий стесненности производства работ.
